Hogy miért kínáljuk az Aluplast termékeit is ügyfeleink részére?




Mert eredeti német minőségi termékről van szó, amely kiváló értékekkel rendelkezik, hogy az Ön otthonában is biztosítsa az otthon melegét! A termékcsalád legelterjedtebb tagja az IDEAL 7000-es melynek hő- és hangszigetelő adottságai teljes mértékben kielégítik a lakossági igényeket és ehhez árban is igazodni tud. Népszerű még az IDEAL 8000-es is mely 85 mm-es beépítési mélységével, középtömítéses EPDM gumi szigeteléssel maradéktalanul kiszolgálja azon ügyfeleinket akik otthonaikban a maximumra vágynak, ideális választás tehát újonnan épülő családiházakhoz. 

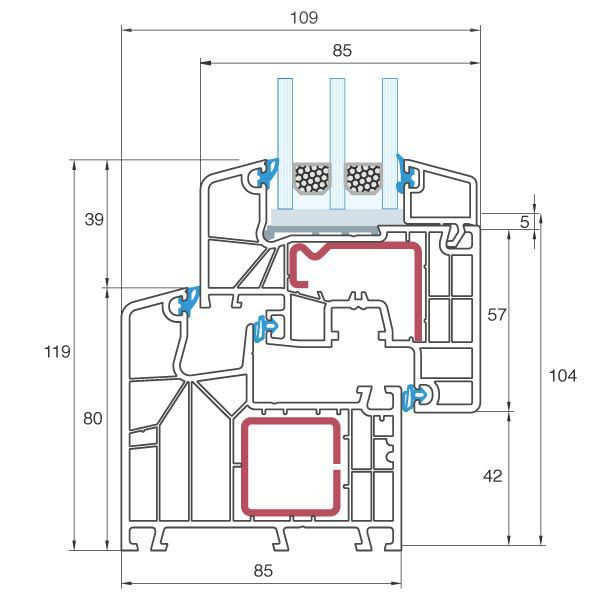
IDEAL 7000 és 8000


6 légkamrás műanyag profilszerkezettel szerelt, világos szürke tömítéssel ellátott, fehér vagy színes fóliás kivitelben is rendelhető németgyártmányú nyílászárócsalád, melyet alapesetben 4-16-4-es Low-E Ug=1.0 bevonatos üvegezéssel adunk. Tökéletes választás azoknak akik lakásaikba műanyag nyílászáróval szeretnék növelni hő-és hangszigetelést, illetve akik régi nyílászáróikat valami modernebb darabra cserélnék, akárcsak esztétikai szempontból is. 

 Ezen profilok 85 mm-es beépítési mélységgel és osztrák MACO, több ponton zárodó vasalattal van ellátva, melynek alapfelszerelése a hibás működtetés gátló és a résszellőző funkció.

 Hőszigetelése a fent leírt üveg típussal a teljes ablakra vetítve eléri a  Uf=1.3 W/m2K-t, mely optimális polgári és panel jellegű társasházakhoz. 

             Aluplast Ideal 7000

Aluplast Ideal 7000, 85mm, 2 EPDM

             Aluplast Ideal 8000

Aluplast Ideal 8000, 85mm, 3 EPDM